43 Viviendas de protección oficial Plaça Duc d´Ahumada

43 Viviendas de protección oficial en Plaça Duc d´Ahumada - Masnou
Concurso IMPSOL
43 Viviendas de protección oficial en Plaça Duc d´Ahumada - Masnou
Concurso IMPSOL
Arquitectura: Eugènia Santacana
Concurso: 2019

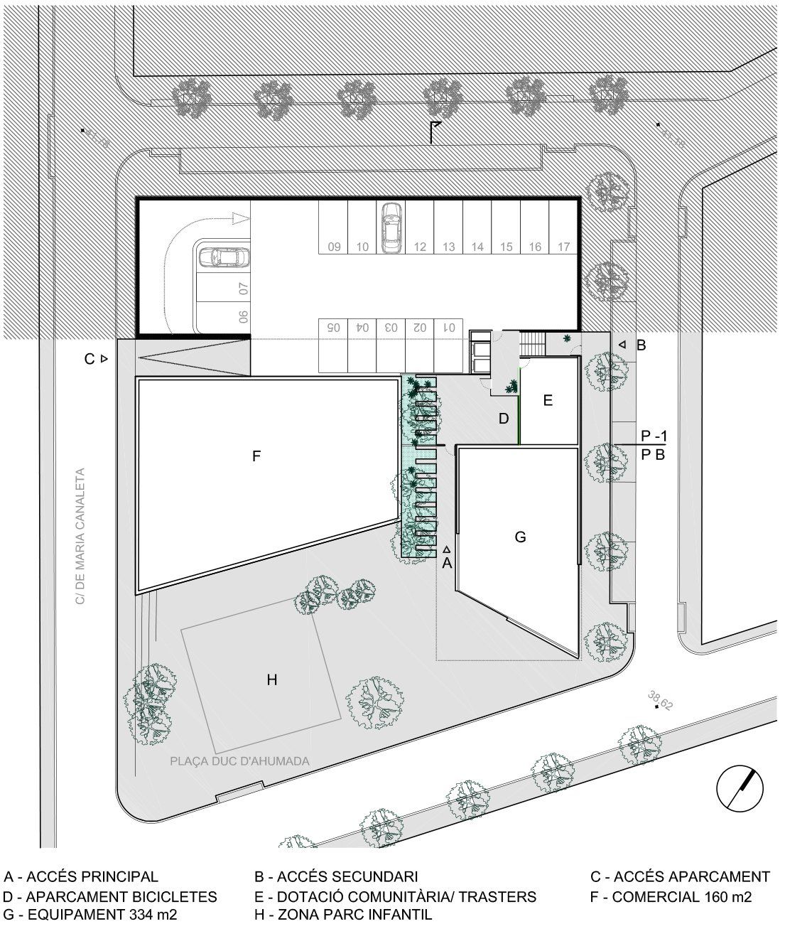
Contexto y coherencia del conjunto con el entorno. Se parte del cumplimiento estricto del planeamiento vigente (zonificación, edificabilidad, ocupación, ARM). En el ámbito confluyen fragmentos de tejidos de casco antiguo, de casas en hilera, de extensiones urbanas ... un primer objetivo de la propuesta es destacar la importancia de la plaza y de los nuevos edificios para aprovechar la oportunidad de aportar orden y estructuración urbana. El atractivo y la actividad en la plaza se refuerza con la disposición del equipamiento y del comercial y con el recorrido del acceso principal a las viviendas (se tendría que adaptar la zona juegos infantiles del proyecto de urbanización). Las fachadas están pensadas para facilitar una correcta integración del nuevo conjunto edificado en este entorno, enclavado en un municipio costero y mediterráneo.

Share by: