Español
es
EUGÈNIA SANTACANA
A
rquitecta
PROYECTOS
ESTUDIO
Equipamientos
Vivienda
Interiorismo
Espacio público
Cronologia
Trayectoria
Equipo
Premios
Conferencias
Publicaciones
Clientes
Contacto
CAT
ESP
ENG
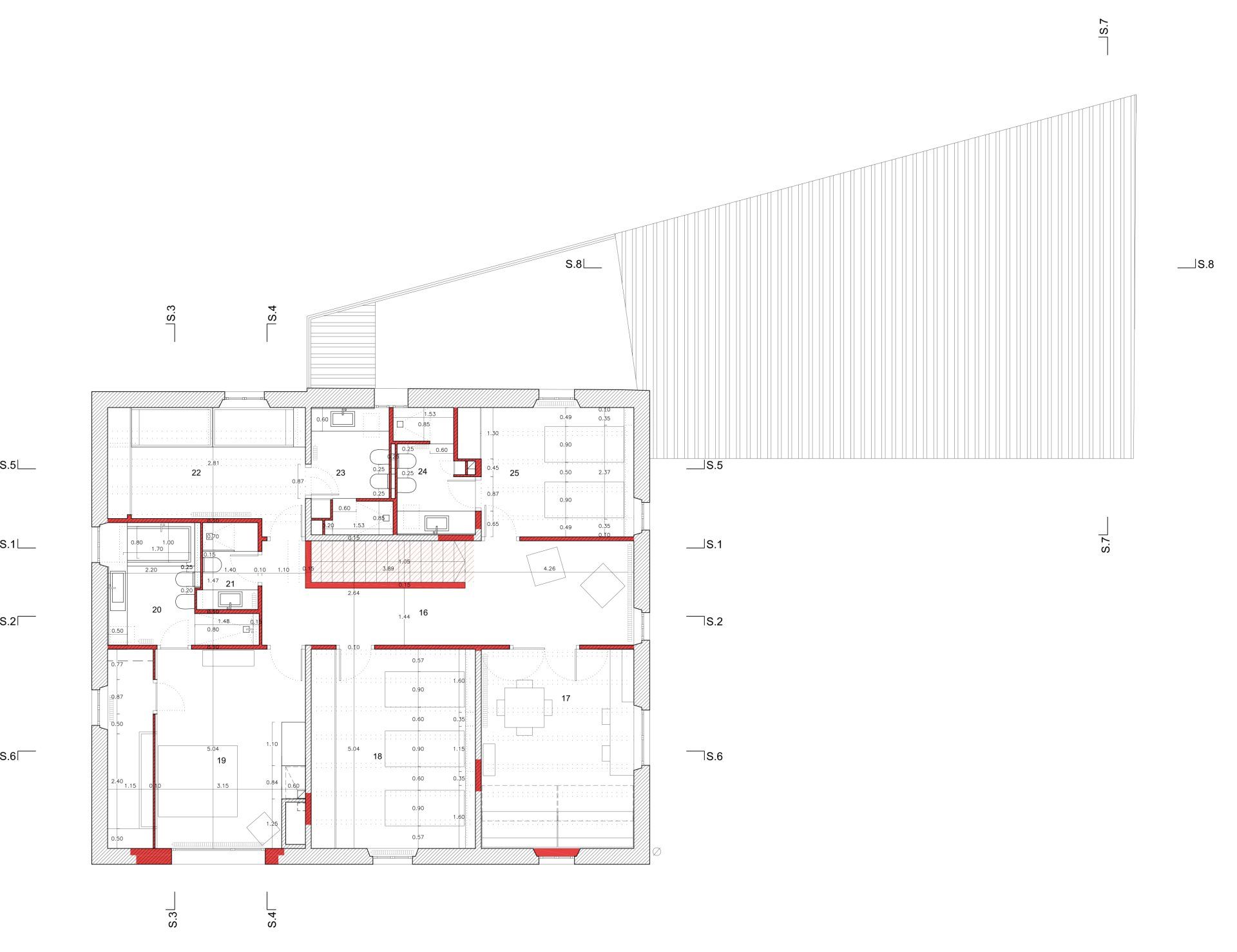
Reforma Masía Can Ribot en Llabià
Reforma Masía Can Ribot en Llabià
+ info
Button
Button
Button
Button
Button
Button
Button
Button
Button
Button
Button
Button
Button
Button
Button
Button
Button
Button
Ver más
Reforma Masía Can Ribot en Llabià
Arquitectura
: Eugènia Santacana + Estela Camprubí
Estructuras:
Eskubi-Turró Arquitectes S.L.
Mediciones y presupuesto:
Rosa Romero
Proyecto:
2009
Construcción:
2011
Constructora:
Construcciones y reformas El Yazidi S.L.
Superficie:
392m2
Button
Button
Button
Button
Button
Button
Button
Button
Ver más
© 2024
Todos los derechos reservados | Eugènia Santacana Arquitecta
Share by: