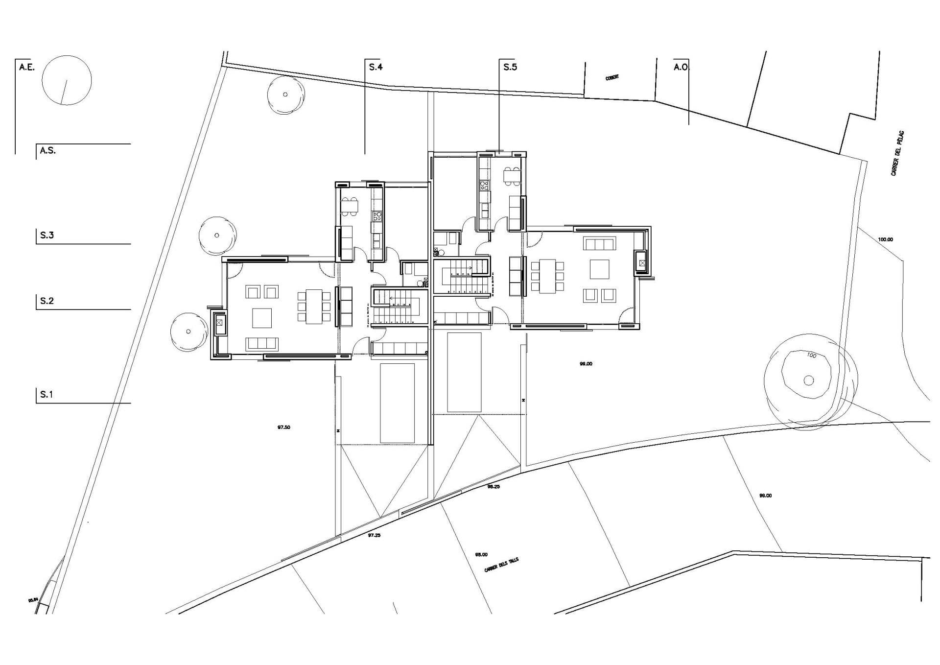
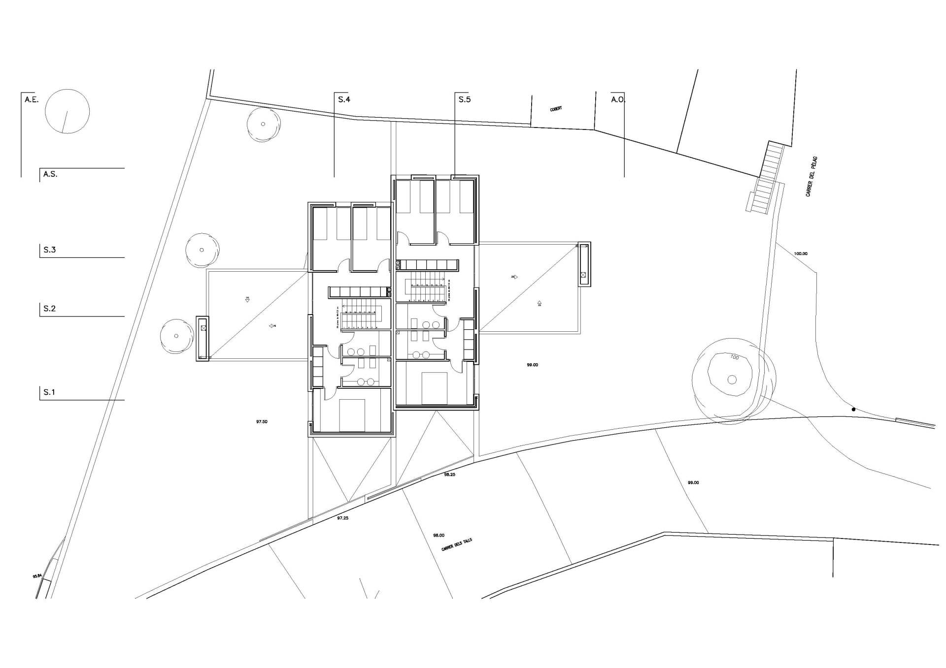
El proyecto está compuesto por dos viviendas adosadas formadas por planta baja y una planta piso. Estas viviendas simétricas se desplazan en planta para ajustarse a la forma irregular de la parcela y se sitúan en diferentes alturas para adaptarse a la pendiente del solar. El acceso a las viviendas se realiza a través de unas rampas suaves que unen la cota de la calle con la cota de planta baja, donde se encuentra el porche de entrada que a su vez se utiliza como aparcamiento. En la planta baja se halla el recibidor, la cocina, el estar-comedor, un dormitorio, un baño pequeño y la escalera de acceso a la planta piso. En el piso superior se ubican tres dormitorios, dos baños completos y un distribuidor que a su vez da acceso a la terraza.